
WASSENAAR
VILLA
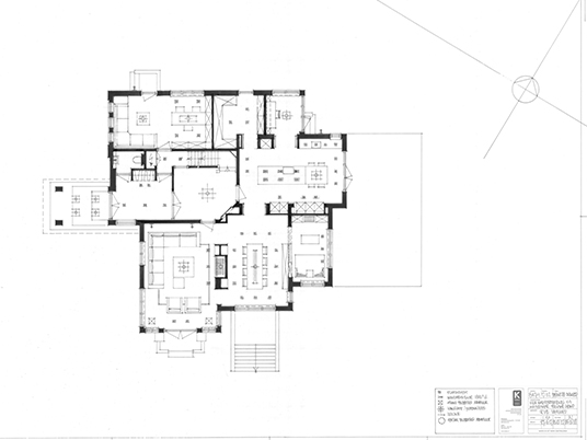
In villawijk de Kieviet in Wassenaar realiseren wij momenteel een luxueuze villa in het hoogste segment. Voor meer informatie kunt u contact met ons opnemen.
STATUS: IN ONTWIKKELING
METRAGE: 550 M2


